Landlord:Town Station Lofts
Address:1347 Old Apex Rd, Cary, NC 27513
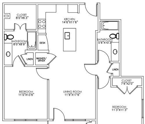
Layout
3 beds, 2 baths, 575 sqft
Pets
NO
Unit Features:
Rent Facts:
$1575
1 beds
$1230
2 beds
$1150